Deming
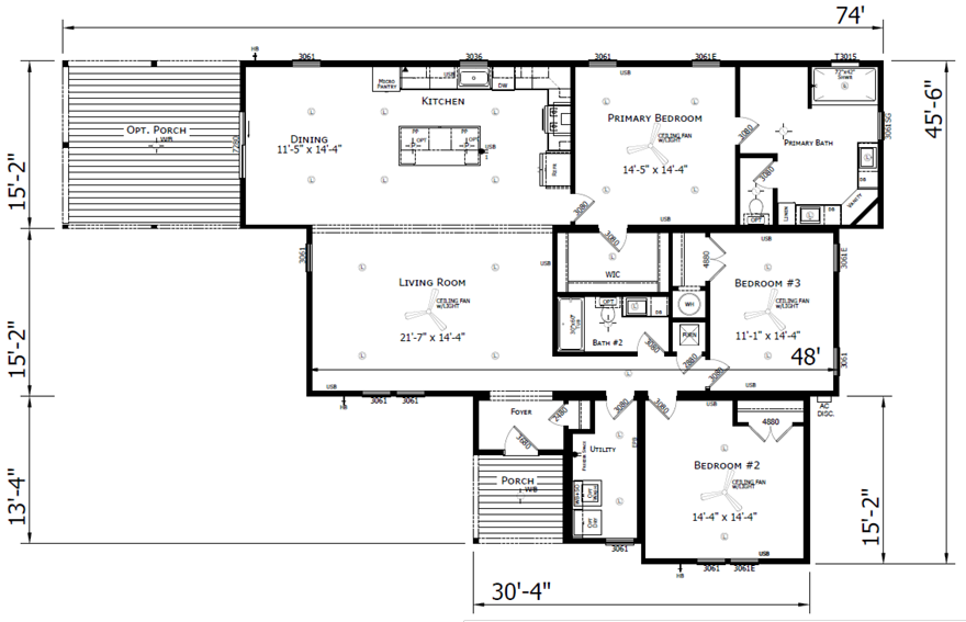
1975 sq. ft.
3 Beds
2 Baths
45 X 74 Triple Wide
Champion Homes | Athens, TX
Innovation Series (Multi-Section)
The Deming model manufactured by Champion Homes | Athens, TX has 3 Beds and 2 Baths. This 1975 square foot Triple Wide home is available for delivery in New Mexico, Arizona, Colorado and Utah.
Deming Price Request
Standard Features
HEAVY DUTY CONSTRUCTION FEATURES:
- 3/12 Roof pitch (nominal)
- 2×6 Floor joists on 16” center
- 2×4 Sidewalls, 8’6” height
- 2×6 floor joists on 28’ wide (2×8 floor joists on center on 32’ wide)
- Insulation: R-11 walls, R-11 floor, R-22 roof
- Removable hitch
- 10” Steel I-beam frame, 99.5” spread (under 56’)
- 12” Steel I-beam frame, 99.5” spread (57’ or over)
- 19/32” Tongue & groove OSB floor decking
- Flat Ceiling
- Ventilated Eaves, Sides Vented 4” Hardi, 12” Solid Front Soffit
- Housewrap
- HUD Code, Wind Zone 1
EXTERIOR FEATURES:
- Composite shingles – 25 year warranty
- ‘Smart Panel’ siding & fascia, painted
- Thermopane white windows (non-grid)
- 6” window trim in all areas
- Hardi vented side soffit
- 36×80 6-Panel front door with storm
- 34×76 Cottage rear door
- LED Coach light at front and rear entries
DECORATOR/INTERIOR FEATURES:
- 1/2” sheet rock wall coverings, square corners
- Tape & Texture throughout
- Tape & Texture flat ceiling
- 2 1⁄4” White Crown molding on ceiling
- 2” White interior door casing
- 3” White base boards
- 30” Doors with heavy duty door hinges
- Matte Black door hardware
- 2” Mini blinds
- 18 oz Mohawk “Tweed” carpet, 1⁄2” rebond carpet pad, tack strip (bedrooms & bedroom closets only)
- Diamonflor linoleum in all areas (except bedrooms & bedroom closets)
- Floor door stops
- 11” LED Pan lighting package in living room & all bedrooms
- 4” LED can lights in all other areas
- Wire and brace for ceiling fan in living room
- Toggle light switches
- MDF shelf and rod in closets & MDF Pantry Shelving
KITCHEN & CABINET FEATURES:
- Smooth top electric range in stainless steel
- Black Slim Profile Vent-A-Hood
- Dishwasher in stainless steel
- Flat 3” overhead cabinet crown
- Maple lined center shelves in cabinets
- Wood cabinet doors with MDF stiles
- 6 inch nickel cabinet pulls
- Shelf above refrigerator
- Cabinet doors over range (per print)
- Drawer over cabinet door construction
- 8 inch stainless steel sink, metal faucet
- Pot & Pan Drawer, 2 standard (per print)
- Post formed countertops
- Post formed backsplash
- Ceramic backsplash behind range
- 4” LED can lights (per print)
BATH FEATURES:
- Master bath tub (per print), window over tub (per print)
- 1-Piece fiberglass tub/shower in guest bath
- Larger transom windows (per print)
- 4” LED can lights over sinks & showers (master bath
- Porcelain sinks
- 36” High vanities with toe kicks
- Trimmed mirror above sinks
- 4-Drawer bank in master (per print)
- Matte black faucets
- Post formed countertops
- Post formed backsplash
- Bath exhaust fans
- Elongated commodes
UTILITY & PLUMBING FEATURES:
- 200 Amp electrical service
- Up flow electric furnace
- 30 Gallon electric water heater
- Whole house fan
- Water shut-off valves
- Master shut-off valve
- Plumb and wire for washer and dryer
- Shelf w/ Rod over washer and dryer
- Wire & Brace for Ceiling Fan, Living Room,
All Bedrooms & Porch
Make Your Home Your Own
The Deming model is manufactured by Champion Homes | Athens, TX and is part of the Innovation Series (Multi-Section). Click on the button below to view the available color selections for this floor plan.

