
Welcome Series
Intermediate Priced Homes · HUD Manufactured Homes

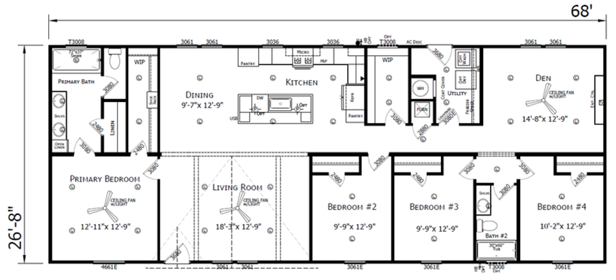
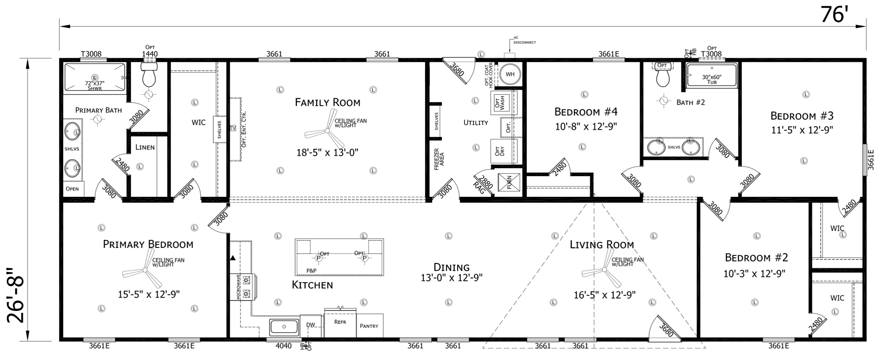
Welcome Series Floor Plans
Standard Features
CONSTRUCTION:
- HUD Wind Zone I
- Floor Joists [16W/28W - 2X6] [18W/32W 2X8] 16” OC
- Ventilated Eaves Sides Vented 8” Hardi; 12” Solid F&R Soffit
- Sidewall / Ceiling [16W 8’ FLAT] [18W 8’ VAULTED] [28W/32W 8’ FLAT]
- Roof Pitch [SW NOMINAL 4/12] [DW NOMINAL 3/12]
- Interior Walls 2x3
- Exterior Walls 2x4
- Dbl Marriage Wall DW 2x3 EA. SIDE
- Dormer [SW PER PRINT] [DW OPEN DORMER]
- Floor Decking 19/32” T&G OSB
- Removable Hitch Std
- Close up Vault -Plank Beam / Flat Foam Beam
THERMAL:
- Wall Insulation R-13
- Floor Insulation R-11
- Roof Insulation R-22
PLUMBING / HEATING:
- Furnace Upflow
- Whole House Vent Ventilaire III Standard
- Furnace Door Standard
- Water Heater 50 Gallon - Electric
- Water Shut-Off Valves Standard
- Master Shut-Off Standard
ELECTRICAL:
- AC Disconnect
- 20A Freezer Plug (where applicable)
- 200 Amp Service
- Light Switches Toggle
- Ceiling Fan (2) 3 Blade CFs STD - LR & Primary Bedroom
UTILITY:
- W/D Overhead Shelf & Rod
LIGHTING:
- Throughout 6” LED Can Lights T/O & CFs Per Print
- Kitchen Island Pendants Optional
- Front Exterior Light Progressive Exterior Light / Recessed Porch
- Rear Exterior Light 6” LED Can Light in Eave
INTERIOR:
- Interior Trim Craftsman
- Door Hardware Black Lever
- Wall Coverings 1/2” Sheet Rock
- Tape & Texture T&T Throughout
- Ceiling 1/2” Sheetrock w/ T&T
- Hardware Black
- Closet Shelving Shelf & Rod All Closets
- Pantry Shelving 3 Shelves
- Window Trim Cased Window
- Interior Doors 3-Panel
- Utility Room Door 30” Louvered Door
- Heavy Door Hinges 3
- Door Stops On Hinge
DRYWALL:
- Corners Square
FLOORING:
- Floor Covering Lino Throughout
CABINETS:
- Flat 3” Crown above all O/H Cabs
- Cabinet Door / Stiles Wood Cab Doors/ Wd Stiles
- Pot & Pan Drawer Kitchen 2 Standard per print
- Base Cabinet System Drawer over Door
- Overhead Kitchen Cabs - 42”
- Cabinet Cabinet over Refrigerator
- Cabinet Hardware 5” Black Metal Cylinder Pulls
- Panel Box Décor Cover
- Water Heater Coat Hook Cover (when applicable)
EXTERIOR:
- Roofing - Galvalume Metal
- Exterior Window Trim 6”x3/4” – FDS
- Front Door White - 6 Panel
- Rear Door 9 Lite
- Patio Door Standard when required - Per Print
- Door Hardware - Black Deluxe
- Fascia Smart Panel - Painted
- Hardi Vented Side Soffit
- Siding - Smart Panel/Painted
- House wrap
WINDOWS:
- Windows - White Thermopane
- 2” Faux Wood Blinds
- Windowsills/Facing - White Cased Window W/Sill
KITCHEN:
- Countertop Backsplash - 1 Row Ceramic
- Backsplash Behind Range - Ceramic Backsplash to Ceiling
- Range Hood - Stonecrest
- SS Single Drop In Kitchen Sink
- Faucets - Pull Down SS/Black
- Counter Tops - Post Formed
- Dishwasher - SS Whirlpool
- Refrigerator - 25cuft SS SxS Refrigerator
- Smoothtop SS Electric Range
BATHROOMS:
- Sinks - Oval
- Faucets - Black Metal
- Drawer Bank Open Cubbies & Open Linens
- Bath Mirror 24”x36” Black Framed Mirror
- Primary Bathtub Freestanding (when applicable)
- Primary Bath Shower - 72” FG Walk in Shower
- Secondary Bathtub/Shower 1PC FG T/S
- Vanities - 36” High W/Toe Kick
- Countertop Backsplash - 1 Row Ceramic
- Toilet - Elongated
- Towel bar/Tissue holder - Standard
- Bath Exhaust Fan - Standard









