
Landmark Series
Economy Priced Homes · HUD Manufactured Homes

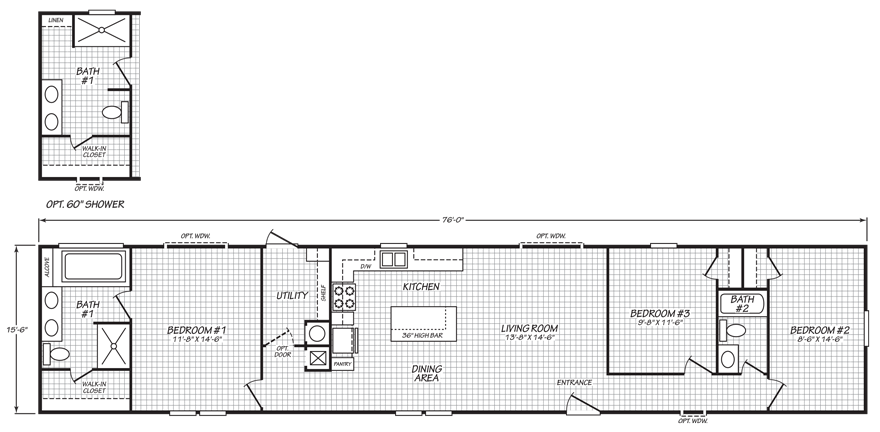
Landmark Series Floor Plans
Standard Features
CONSTRUCTION:
- Solid Steel I-Beam Frame
- 2x6 Floor Joists (28 wide)
- 2x8 Floor Joists (16, 18 & 32 wide)
- Triple Fastened OSB Floor Decking
- Thermal Zone 2 (26-11-11) Insulation – Singles
- Thermal Zone 2 (30-11-11) Insulation - Doubles
- Fiberglass Insulated In Floor Duct System
- Water Heater Pan with Exterior Drain
- Stud Mounted Electrical Outlets
EXTERIOR:
- Low Maintenance Premium Vinyl Siding
- Owens Corning 25 Year Shingles
- 38” House Type Front Door w/ Storm
- 34” Privacy Enhanced Blank Rear Door
- GFCI Electrical Outlet on Back
- Low E Vinyl Thermal Pane Windows
- 20lb Roof Load
- Smart Panel Facia w/ Metal Vented Soffit
INTERIOR:
- LED Can Lights T/O
- 6-Panel Interior Doors w/ Heavy Hinges
- Floor Mounted Door Stops
- Vinyl Covered Sheetrock Walls
- Decorative Wall Panels (select areas)
- Digital Programmable Thermostat
- Beauflor Vinyl Flooring Throughout
- Soft Close Hinges – All Cabinet Doors
- 2” Blinds Throughout
- Beauflor Transition Bars for Marriage Line
KITCHEN:
- Stainless Steel Whirlpool Appliances
- Stainless 18 Cubic Foot Refrigerator
- Stainless Dishwasher
- Stainless Electric Range with Vent Hood
- Deep Black Stainless Steel Sink
- Gooseneck Faucet w/ Pull Out Sprayer
- Center Base Shelves
- 42” Lined Overhead Cabinets
- Shaker Style Cabinet Doors w/ Hardware
- Wilsonart Brand Laminate Countertops
BATH & UTILITIES:
- Glamour Bath Upgrade (select models)
- Shut Off Valves T/O
- Wire Shelf in Utility Room
- China Bath Sinks with Upgrade Metal Faucets
- 48” Fiberglass Shower in Master Bath (select
- models)
- 54” Fiberglass Tub/Shower in Guest Bath
- Wood Mirror Trim in all Baths
- 50 Gallon Dual Element Water Heater
POPULAR OPTIONS:
- LP Smart Panel Exterior Siding
- Upflow HVAC Duct System
- Ceramic Backsplash in Kitchen
- Ceiling Fans in LR & Bedrooms
- Entertainment Center w/ Electric Fireplace
- Tape & Texture Walls (select areas)















